Аренда квартиры в переулке Остоженки
ID: 5784

Аренда квартиры в переулке Остоженки

Оставить заявку
Max

Трёхкомнатная квартира в клубном малоквартирном доме в тихом переулке Остоженки.

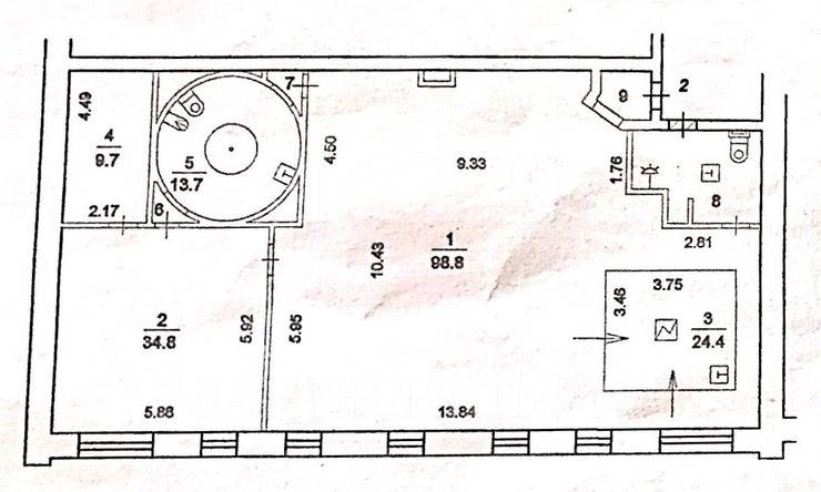
Планировка функциональная: спальня (26 кв.м) с гардеробной комнатой и хозяйским санузлом, спальня / кабинет (22 кв.м), студия (60 кв.м), кухня, санузел (душевая кабина). Полностью меблирована. Встроенная кухня со всей необходимой техникой. Эксклюзивный дизайнерский ремонт в стиле Hi-Tech.
Две застекленные лоджии. Интернет, спутниковое ТВ. Территория дома огорожена, закрыта и охраняется 24 часа. Подземная парковка на 1 м/м включена в стоимость.

Инфраструктура района хорошо развита и включает: кафе, рестораны, фитнес-центры, школы и детсад, заведения культурно-развлекательного характера, предприятия бытового обслуживания, магазины и т.д.
Кристина Кочеткова
Оставить заявку
Max
 Мансуровский пер. 5, Москва, Россия

Оставить заявку

Как к Вам обращаться? (необязательно)
Ваша электронная почта (необязательно)
Номер Вашего телефона (обязательно)
Ваше сообщение (необязательно)
Аналогичные предложения
Эксклюзив
Спецпредложение
ID 51518

Уникальная квартира в ЖК “Дом на Мосфильмовской”

Площадь: 150 м2

Комнат: 3

Этаж: 47 / 54

комнат
3
площадь
150 м2
спален
2
этаж
47 / 54

Жилой комплекс: Дом на Мосфильмовской

Район:

Воробьевы горы

Адрес: Мосфильмовская 8

Предлагается трехкомнатная квартира в Жилом комплексе “Дом на Мосфильмовской”. В квартире выполнен качественный дизайнерский ремонт. Квартира полностью меблирована эксклюзивной мебелью из чисто экологических материалов, полностью оборудована качественной...

1 200 000 руб.

Возможна продажа 195 000 000 руб.
ID 8189

Аренда квартиры в ЖК «Новая Остоженка»

Площадь: 224 м2

Комнат: 4

Этаж: 2 / 7

комнат
4
площадь
224 м2
спален
3
этаж
2 / 7

Жилой комплекс: Новая Остоженка

Район:

Кропоткинская

Адрес: Зачатьевский 1-й пер. 5

В аренду на длительный срок предлагается 4-х комнатная квартира со свежим ремонтом в стиле современной классики. В отделке использовался натуральный оникс. Планировка квартиры: Гостиная-кухня-столовая. 3 спальни. 3...

600 000 руб.

Эксклюзив
Спецпредложение
ID 52368

Превосходная квартира в сердце Остоженки

Площадь: 283 м2

Комнат: 4

Этаж: 2 / 5

комнат
4
площадь
283 м2
спален
3
этаж
2 / 5

Жилой комплекс: Остоженка 11

Район:

Кропоткинская

Адрес: Остоженка 11

Предлагается прекрасная квартира общей площадью 283 кв.м в элитном жилом комплексе класса de luxe "Остоженка 11", расположенном в самом престижном квартале Москвы - "Золотой миле". Квартира после...

3 500 000 руб.

Снижение цены
Спецпредложение
ID 50254

Предлагается на аренду шикарный пентхаус в клубном доме «Дом на Озерковской»!

Площадь: 220 м2

Комнат: 5

Этаж: 6 / 6

комнат
5
площадь
220 м2
спален
3
этаж
6 / 6

Жилой комплекс: Дом на Озерковской

Район:

Новокузнецкая, Третьяковская

Адрес: Озерковская наб. 52А

Вашему вниманию на аренду предлагается превосходный пятикомнатный пентхаус в клубном доме "Дом на Озерковской",расположенному по адресу: Озерковская набережная, 52А. Просторный, светлый пентхаус с высококачественным ремонтом, выполненным по...

500 000 руб.

ID 53194

Аренда квартиры, Фрунзенская 2-я

Площадь: 141 м2

Комнат: 3

Этаж: 6 / 14

комнат
3
площадь
141 м2
спален
2
этаж
6 / 14

Жилой комплекс: Пять Звезд

Район:

Парк Культуры, Спортивная, Фрунзенская

Адрес: Фрунзенская 2-я 12

Вашему вниманию предлагается уникальная 3-комнатная квартира в ЖК "Пять Звезд".Выполнен качественный ремонт с применением дорогостоящих эксклюзивных материалов, установлена техника от ведущих мировых производителей, мебель от известных дизайнеров.Функциональной...

600 000 руб.

ID 8514

Трехкомнатная квартира с дизайнерской отделкой

Площадь: 156 м2

Комнат: 3

Этаж: 8 / 15

комнат
3
площадь
156 м2
спален
2
этаж
8 / 15

Жилой комплекс: Легенда Цветного

Район:

Цветной Бульвар

Адрес: Цветной бульв. 2

В аренду предлагается стильная квартира с дизайнерской отделкой в жилом комплексе "Легенда цветного". Функциональная планировка: две спальни со своими санузлами, просторная кухня гостиная, кабинет.Квартира полностью меблирована современной...

450 000 руб.

+7 (495) 788-03-35
Продолжая работу с сайтом, вы подтверждаете свое согласие на обработку персональных данных и файлов cookie.