В аренду дом в поселке Николино (Новое Николино)
ID: 23856

В аренду дом в поселке Николино (Новое Николино)

Оставить заявку
Max

Классическая резиденция в лучшем поселке Рублевки. Шикарная инфраструктура поселка предлагает для жителей комфорт и удобство: сервисный центр и круглосуточная диспетчерская служба, магазины, рестораны и кафе, детские площадки,банный комплекс, бассейны-открытый и закрытый, оздоровительные и спортивно-развлекательные заведения, автозаправка и мойка автомобилей.
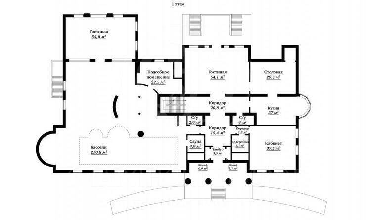
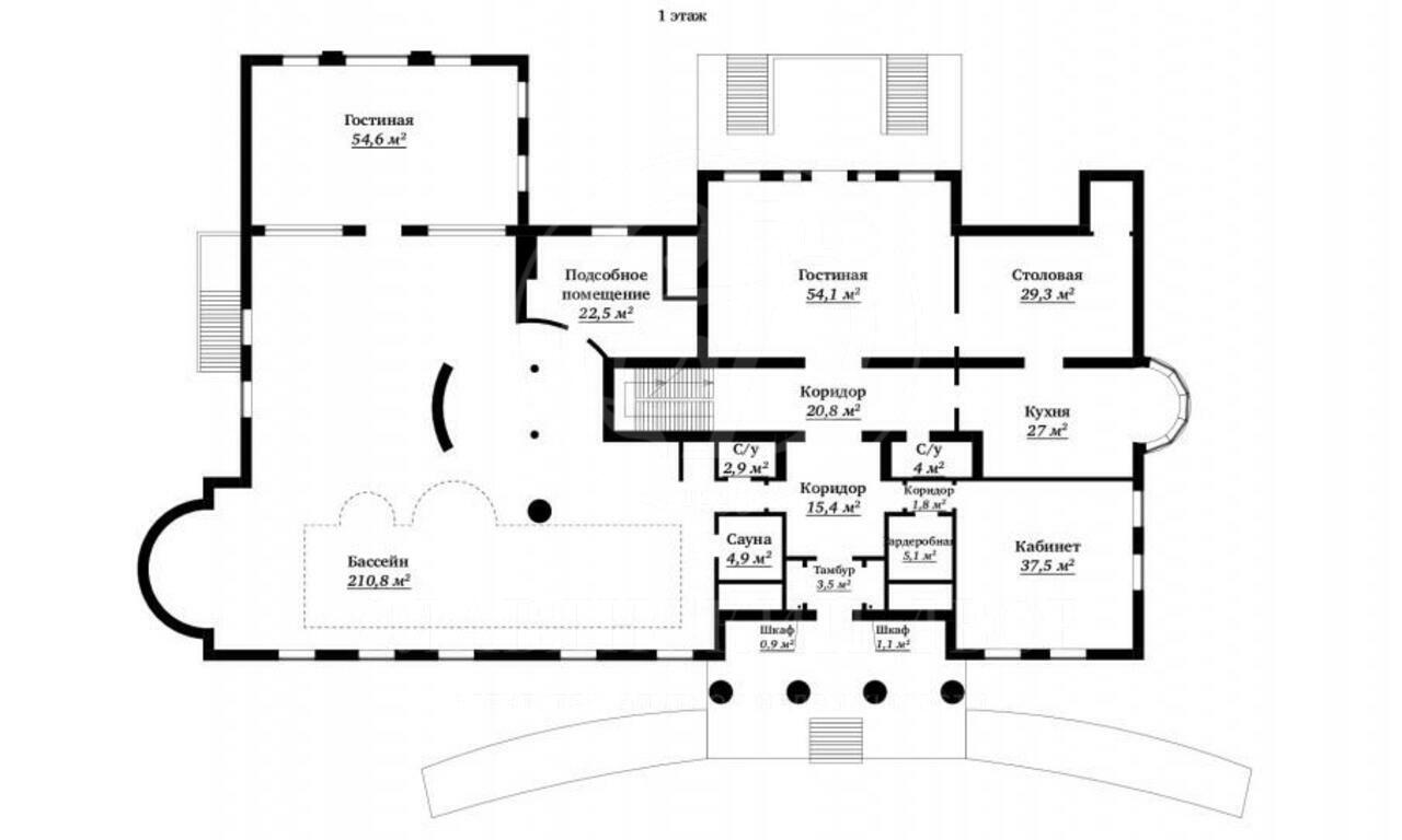
Планировка дома:
1 этаж: гостиная с выходом на террасу, кухня, столовая, гардеробная, с/у, зимний сад, восточная комната, кабинет, постирочная, бойлерная, кладовая, гараж.
2 этаж:
1 блок: хозяйская спальня с гардеробной и ванной комнатами,
2 блок: 2 детские спальни с гардеробной и ванной комнатами, кабинет
3 блок: 2 гостевые комнаты,, с/у, зона отдыха.
Мансарда: помещение свободного назначения, кухня, душевая, с/у.
Лесной участок с дорогим ландшафтом и двумя прудами с фонтаном. Еще на участке расположены: деревянный дом с русской баней, купелью, кухней, гостиной и 2 беседки (одна- с барбекю). Гараж на 4 м/м с 4-х комнатной квартирой для персонала. Еще гараж на один автомобиль. В общей сложности на участке может разместиться до 15 машин.

Оставить заявку
Max
 Московская область, Николино (Новое Николино)
Смотреть 80 предложений в посёлке Николино (Новое Николино)

Оставить заявку

Как к Вам обращаться? (необязательно)
Ваша электронная почта (необязательно)
Номер Вашего телефона (обязательно)
Ваше сообщение (необязательно)
Аналогичные предложения
ID 25121

Николино! И еще раз Николино!

Площадь: 1100 м2

Этажей: 3

площадь
1100 м2
спален
4
участок
70 сот.

Посёлок: Николино (Новое Николино)

Направление: Рублево-Успенское шоссе 24км.

Описание дома: Предлагается на аренду уютный светлый, полностью готовый к проживанию дом на шикарном лесном участке. Планировка дома: 1 этаж: холл, домашний кинотеатр, гостиная с камином, столовая...

1 300 000 руб.

Возможна продажа 551 000 000 руб.
ID 25712

Шикарный дом в Николино

Площадь: 850 м2

Этажей: 3

площадь
850 м2
спален
4
участок
33 сот.

Посёлок: Николино (Новое Николино)

Направление: Рублево-Успенское шоссе 22км.

Описание дома Стильный дом 850 кв.м. с современным дизайном интерьеров. В отделке использованы качественные и дорогие материалы. Планировка дома 1 этаж: прихожая, холл, игровая комната, с/у, гардеробная,...

2 500 000 руб.

Возможна продажа Цена по запросу
ID 27607

В аренду дом в поселке Николино

Площадь: 350 м2

Этажей: 3

площадь
350 м2
спален
3
участок
12 сот.

Посёлок: Николино (Новое Николино)

Направление: Рублево-Успенское шоссе 22км.

Описание дома: В аренду предлагается стильный коттедж 350 кв.м. на участке 12 соток с красивым ландшафтным дизайном. Планировка дома: 1 этаж - холл, гардеробная, котельная, санузел, каминный...

787 000 руб.

Возможна продажа 173 000 000 руб.
ID 28667

В аренду дом в поселке Николино (Новое Николино)

Площадь: 930 м2

Этажей: 3

площадь
930 м2
спален
4
участок
22 сот.

Посёлок: Николино (Новое Николино)

Направление: Рублево-Успенское шоссе 24км.

Описание посёлкаПоселок «Николино» расположен в 25 км от МКАД по Рублево-Успенскому шоссе. Его общая территория составляет 150 гектаров, на которой находится 250 домовладений. Поселок находится в районе...

2 800 000 руб.

Возможна продажа 950 000 000 руб.
ID 26189

В аренду дом в поселке Николино

Площадь: 1100 м2

Этажей: 3

площадь
1100 м2
спален
6
участок
33 сот.

Посёлок: Николино (Новое Николино)

Направление: Рублево-Успенское шоссе 22км.

Описание посёлка Поселок «Николино» расположен в 22 км от МКАД по Рублево-Успенскому шоссе на территории 150 Га. Здесь есть все, что нужно для комфортной жизни. Описание дома:...

3 940 000 руб.

Возможна продажа 230 000 000 руб.
ID 20098

В аренду дом в поселке Николино (Новое Николино)

Площадь: 700 м2

Этажей: 3

площадь
700 м2
спален
5
участок
45 сот.

Посёлок: Николино (Новое Николино)

Направление: Рублево-Успенское шоссе 24км.

Описание поселка: Описание поселка: Поселок «Николино» расположен в 22 км от МКАД по Рублево-Успенскому шоссе. Его общая территория составляет 150 гектаров, на которой находится 250 домовладений. Поселок...

1 750 000 руб.

+7 (495) 925-33-77
Продолжая работу с сайтом, вы подтверждаете свое согласие на обработку персональных данных и файлов cookie.