Элегантный двухуровневый пентхаус в особняке на Остоженке
ID: 7978

Элегантный двухуровневый пентхаус в особняке на Остоженке

Оставить заявку
Max

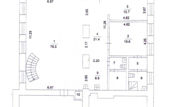
Вашему вниманию на продажу предлагается двухуровневый пентхаус в особняке на Остоженке общей площадью 279 м.кв. на 5 этаже.

В пентхаусе выполнена высококачественная отделка в современном классическом стиле, использованы благородные материалы — дуб, мрамор. Особый шик гостиной придают второй свет (высота потолка достигает 7 с половиной метров) и почти парящая в воздухе лестница.
Планировка функциональна и ориентирована на комфортное проживание:

1 уровень: холл, большая гардеробная с окном, гостиная с выделенными зонами кухни, столовой и отдыха, спальня со своими гардеробной и ванной комнатами, гостевой с/у, постирочная, бойлерная;
2 уровень: аристократический балкон-библиотека, две спальни со своими гардеробными и ванными комнатами.

В пентхаусе соединились благородство «старой» Москвы, ее удивительный дух и изысканная актуальность интерьера. Здесь царит атмосфера уединенности и умиротворения, как будто время остановилось.
Филипп
Оставить заявку
Max
 Москва, Россия

Оставить заявку

Как к Вам обращаться? (необязательно)
Ваша электронная почта (необязательно)
Номер Вашего телефона (обязательно)
Ваше сообщение (необязательно)
Аналогичные предложения
ID 51868

Пентхаус у Кремля в готовом клубном доме в Carre Blanc

Площадь: 540 м2

Комнат: 8

Этаж: 4 / 4

комнат
8
площадь
540 м2
спален
6
этаж
4 / 4

Жилой комплекс: Carre Blanc

Район: ,

Кропоткинская, Охотный Ряд

Адрес: Москва, Россия

Выдержанный и лаконичный облик клубного дома Carré Blanc искусно сочетает в себе архитектурную принадлежность к легендарному историческому кварталу с собственной художественной исключительностью. Выполненный из натурального камня с...

Цена по запросу

Спецпредложение
ID 50090

Закрытая продажа

Площадь: 550 м2

Комнат: 6

Этаж: 5 / 5

комнат
6
площадь
550 м2
спален
5
этаж
5 / 5

Жилой комплекс: Молочный пер., 7

Район:

Кропоткинская, Парк Культуры

Адрес: Молочный пер. 7

Уникальный в своем роде объект недвижимости, который может стать местом Вашего семейного очага. Пентхаус с террасой (100 кв.м.) имеет шикарные виды на исторический центр Москвы.Виды на Зачатьевский...

1 210 000 000 руб.

ID 51310

Продажа пентхауса в  ЖК Vesper Tverskaya

Площадь: 1067 м2

Комнат: 7

Этаж: 9 / 9

комнат
7
площадь
1067 м2
спален
6
этаж
9 / 9

Жилой комплекс: Vesper Tverskaya

Район:

Белорусская, Маяковская, Пушкинская, Тверская

Адрес: Тверская-Ямская 1-я 2

Стильный пентхаус площадью 1067 кв. м в новом жилом комплексе класса premium ЖК Vesper Tverskaya с уникальным сервисом отеля 5* - ресторан, бар, спортивный клуб с бассейном...

Цена по запросу

ID 8389

Самый шикарный пентхаус в Москве с видом на Кремль

Площадь: 350 м2

Комнат: 6

Этажей: 0

комнат
6
площадь
350 м2
спален
5
этаж
0 / 0

Район:

Кропоткинская

Адрес: Пречистенка 0

В тихом центре Москвы предлагается фантастический пентхаус 350 кв.м. с необыкновенными видами. Новый красивый дом, серьезная охрана. Интерьер выполнен известным дизайнерским бюро. Это vip уровень! Это high...

Цена по запросу

ID 52585

Лучший пентхаус в Хамовниках

Площадь: 200 м2

Комнат: 4

Этаж: 4 / 4

комнат
4
площадь
200 м2
спален
3
этаж
4 / 4

Жилой комплекс: Литератор

Район: ,

Парк Культуры, Фрунзенская

Адрес: Льва Толстого 23к7

Предлагается Пентхаус 193 м2 с террасой 100 м2 , без отделки в ЖК Литератор. Особенности:- 2 квартиры на этаже- Высота потолков 3,5 м2- 9 окон- приточно-вытяжная вентиляция-...

185 000 000 руб.

Эксклюзив
Спецпредложение
ID 8352

Видовой пентхаус с террасой в доме у парка «Музеон»

Площадь: 640 м2

Комнат: 7

Этаж: 10 / 11

комнат
7
площадь
640 м2
спален
5
этаж
10 / 11

Жилой комплекс: Коперник

Район:

Полянка, Третьяковская

Адрес: Якиманка Большая 22к3

Вашему вниманию на продажу предлагается эксклюзивный 10-ти комнатный пентхаус площадью 440 кв.м (+160 м2 терраса). Пентхаус расположен на одиннадцатом этаже клубного комплекса Коперник.Дизайнерский ремонт находится на финальной...

Цена по запросу

+7 (495) 788-03-35
Продолжая работу с сайтом, вы подтверждаете свое согласие на обработку персональных данных и файлов cookie.