Продажа квартиры, Обыденский 2-й пер

Оставить заявку
Max

Доходный дом начала ХХ века в стиле русский классицизм реконструирован силами специалистов архитектурного бюро «Остоженка» во главе с архитектором К. В. Гладких в 1997 году.
Фасад детально восстановлен.
Архитектурные детали прошлого столетия доподлинно воспроизведены.
На первом этаже входной группы расположена бильярдная комната, мини-кинотеатр, спортивный зал, сауна со spa-зоной и массажный кабинет.
Есть внутренний дворик.
В пешей доступности от дома – храм Пророка Илии в Обыденском переулке, храм Христа Спасителя, Пречистенская набережная, старинный Зачатьевский монастырь, уютный Гоголевский бульвар, ГМИИ имени А.С. Пушкина, Кремль, лучшие рестораны Москвы.
За несколько минут на автомобиле можно добраться до парка «Зарядье», ГЭС-2 и других достопримечательностей центра города.
Вашему вниманию предлагается уникальная квартира, не имеющая аналогов на рынке премиальной недвижимости.
Квартира находится в самом центре Москвы, в пешей доступности от Храма Христа Спасителя, Пречистенкой набережной и Кремля.
Остоженка — лучшая локация легендарной «Золотой Мили», исторически престижный, статусный и вместе с тем красивый, аутентичный и атмосферный район.
Представляем Вам полноценную городскую резиденцию, в которой царит атмосфера приватности и спокойствия.
Высокие потолки создают ощущение простора и буквально наполняют комнаты светом и воздухом.
Квартира занимает пятый и часть шестого этажа. Лифт доставляет собственника непосредственно в квартиру, что обеспечивает полную приватность и безопасность владельцев резиденции и их гостей.
Предложение реализуется в формате «закрытых продаж».
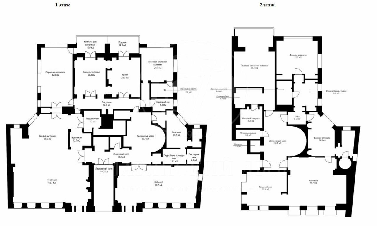
Планировка квартиры:
5 этаж:
* Две просторные гостиные – 62 и 50 кв.м.
* Две столовые – малая и парадная
* Комната для завтраков, лоджия
* Две кухни – основная и рабочая
* Гостевая спальня с ванной и гардеробной комнатами
* Гардеробная и два гостевых санузла
* Кабинет
* Зона спа с сауной и массажной комнатой
* Блок для персонала – спальня, санузел, постирочная и подсобное помещение
6 этаж:
* Мастер-спальня с гардеробной и ванной комнатой
* Две спальни с гардеробными и ванными комнатами
* Помещение для хранения.
Данное предложение для истинных ценителей недвижимости Москвы, не имеющее аналогов на рынке класса «премиум».

Уникальная квартира на Остоженке. Все подробности по телефону
Кристина Волина
Оставить заявку
Max
 Обыденский 2-й пер. 3с1, Москва, Россия

Оставить заявку

Как к Вам обращаться? (необязательно)
Ваша электронная почта (необязательно)
Номер Вашего телефона (обязательно)
Ваше сообщение (необязательно)
Аналогичные предложения
Эксклюзив
Спецпредложение
ID 53340

Продажа квартиры, Садовническая наб

Площадь: 267 м2

Комнат: 6

Этаж: 6 / 6

комнат
6
площадь
267 м2
спален
5
этаж
6 / 6

Жилой комплекс: Садовническая 69

Район:

Павелецкая

Адрес: Москва, Россия

На продажу в проекте "Садовническая 69" предлагается пентхаус с террасой общей площадью 267,04 кв.м.Элитный клубный квартал «Садовническая 69» на острове Балчуг.Уникальный адрес в сердце Москвы — первая...

Цена по запросу

Снижение цены
Эксклюзив
Спецпредложение
ID 52004

Стильная квартира на Патриарших Прудах

Площадь: 91 м2

Комнат: 2

Этаж: 5 / 8

комнат
2
площадь
91 м2
спален
1
этаж
5 / 8

Район:

Пушкинская

Адрес: Козихинский Малый пер. 7

Вашему вниманию предлагается стильная квартира в клубном доме с подземным паркингом на Патриарших Прудах. В квартире выполнен дорогостоящий ремонт по индивидуальному проекту, установлены вся мебель и техника...

119 000 000 руб.

Возможна аренда 380 000 руб. в месяц
ID 52545

Квартира в ЖК Vander Park с террасой

Площадь: 176 м2

Комнат: 5

Этаж: 2 / 26

комнат
5
площадь
176 м2
спален
4
этаж
2 / 26

Район:

Молодежная

Адрес: Рублевское шоссе 101

На продажу предлагается квартира, общей площадью 193,1 кв.м с учетом террасы. Жилая площадь составляет 170 кв.м . С учетом коэффициента лоджии, площадь квартиры составляет 176,5 кв.м ....

110 000 000 руб.

ID 52874

Авторская квартира в ЖК «Солнечный берег»

Площадь: 345 м2

Комнат: 10

Этаж: 17 / 18

комнат
10
площадь
345 м2
спален
6
этаж
17 / 18

Район:

Проспект Вернадского

Адрес: Мичуринский пр-т 29

ЖК "Солнечный берег" в 2-х минутах от метро Раменки 2-уровневая квартира 345 кв.м. 1 уровень: кухня-столовая-гостиная с камином и роялем, бильярдная со столом для русского бильярда, кабинет-библиотека,...

Цена по запросу

Возможна аренда 400 000 руб. в месяц
Эксклюзив
Спецпредложение
ID 53280

Закрытая продажа в Carre Blanc

Площадь: 120 м2

Комнат: 3

Этаж: 3 / 5

комнат
3
площадь
120 м2
спален
2
этаж
3 / 5

Жилой комплекс: Carre Blanc

Район: ,

Кропоткинская

Адрес: Пречистенская наб. 43

Предлагается апартамент общей площадью 125 кв.м на 3 этаже.Carré Blanc — архитектурное пространство, сочетающее в себе традиции и инновации, идеальную своей простотой форму и доведенное до совершенства...

390 000 000 руб.

Снижение цены
Эксклюзив
Спецпредложение
ID 52214

Роскошь, достойная избранных

Площадь: 220 м2

Комнат: 4

Этаж: 4 / 7

комнат
4
площадь
220 м2
спален
2
этаж
4 / 7

Жилой комплекс: Пречистенка, 13

Район:

Кропоткинская

Адрес: Пречистенка 13

Элегантная квартира общей площадью 220кв.м в малоквартирном доме на Пречистенке 13, после полной реконструкции с воссозданным фасадом бывшего доходного дома начала XX века. Парадный подъезд, круглосуточная охрана,...

988 000 000 руб.

Возможна аренда 2 370 000 руб. в месяц
+7 (495) 788-03-35
Продолжая работу с сайтом, вы подтверждаете свое согласие на обработку персональных данных и файлов cookie.