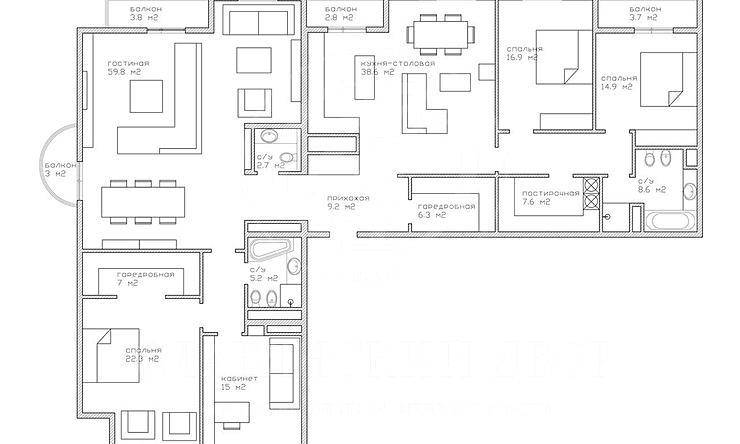
ЖК «Приват-Сквер» монолитный дом 2006 года постройки. Предлагается шестикомнатная квартира уникальной планировки (были объедены 2 квартиры). Выполнен качественный ремонт с использованием дорогостоящих материалов. Планировка: кухня-столовая, гостиная, четыре спальни, три туалета, четыре балкона, три гардеробные комнаты. Круглосуточная охрана, огороженная территория, детская площадка, сохранённая Липовая аллея, подземный паркинг, хорошая транспортная доступность и полный набор объектов инфраструктуры делают комплекс очень комфортным для проживания. В шаговой доступности расположен ТЦ Авиапарк ,также на Ходынском поле построен современный парк с ландшафтным дизайном и площадками для занятия спортом. Ближайшие станции к ЖК «Приват-Сквер » м .ЦСКА (5 мин пешком) ,м.Аэропорт ,м.Динамо и м.Полежаевская.

Уникальная квартира с современным качественным ремонтом.
Яна Грошева
 Авиаконструктора Микояна 14к3, Москва, Россия

Оставить заявку

Как к Вам обращаться? (необязательно)
Ваша электронная почта (необязательно)
Номер Вашего телефона (обязательно)
Ваше сообщение (необязательно)
Аналогичные предложения
Эксклюзив
Спецпредложение
ID 53280

Закрытая продажа в Carre Blanc

Площадь: 120 м2

Комнат: 3

Этаж: 3 / 5

комнат
3
площадь
120 м2
спален
2
этаж
3 / 5

Жилой комплекс: Carre Blanc

Район: ,

Кропоткинская

Адрес: Пречистенская наб. 43

Предлагается апартамент общей площадью 125 кв.м на 3 этаже.Carré Blanc — архитектурное пространство, сочетающее в себе традиции и инновации, идеальную своей простотой форму и доведенное до совершенства...

390 000 000 руб.

Снижение цены
Эксклюзив
Спецпредложение
ID 51934

Продажа роскошного апартамента на Остоженке

Площадь: 250 м2

Комнат: 4

Этаж: 2 / 5

комнат
4
площадь
250 м2
спален
3
этаж
2 / 5

Район: ,

Кропоткинская

Адрес: Нащокинский пер. 7

Предлагается уникальный дизайнерский апартамент в клубном доме Академия. Продуманное до мелочей планировочное решение включает в себя: кухню-столовую, которая отделена от просторной гостиной, приватную зону, состоящую из двух...

Цена по запросу

Возможна аренда 2 500 000 руб. в месяц
Снижение цены
Эксклюзив
Спецпредложение
ID 52211

Бесконечная элегантность стиля

Площадь: 340 м2

Комнат: 5

Этаж: 3 / 10

комнат
5
площадь
340 м2
спален
3
этаж
3 / 10

Жилой комплекс: Онегин

Район:

Полянка

Адрес: Полянка Малая 2

Вашему вниманию предлагается поистине уникальный объект в ЖК Онегин. Современный дизайн, выполненный известным зарубежным автором. Функциональной планировкой предусмотрено: зона кухни, просторная гостиная, основная спальная комната с собственным...

718 000 000 руб.

Возможна аренда 2 500 000 руб. в месяц
ID 53269

Для самых взыскательных

Площадь: 170 м2

Комнат: 4

Этаж: 4 / 5

комнат
4
площадь
170 м2
спален
2
этаж
4 / 5
Внимание к деталям на каждый сантиметр пространства:— Премиальная эко-френдли отделка с использованием американского ореха, настоящего мха, слэба и настоящего древнего аммонита.— Самая современная система умного дома: датчики...

330 000 000 руб.

Возможна аренда 850 000 руб. в месяц
Эксклюзив
Спецпредложение
ID 53308

Продажа квартиры, Никитский б-р

Площадь: 430 м2

Комнат: 5

Этаж: 8 / 8

комнат
5
площадь
430 м2
спален
4
этаж
8 / 8

Жилой комплекс: Никитский 6

Район:

Арбатская

Адрес: Никитский б-р 6

Предлагается панорамный пентхаус, общей площадью 430 кв.м. с эксклюзивным интерьером, дровяными камином и террасой с видами на Кремль.«Никитский 6» – жилой дом de luxe класса, расположенный в...

Цена по запросу

ID 50953

Продажа квартиры, Мичуринский пр-т

Площадь: 327 м2

Комнат: 5

Этаж: 17 / 17

комнат
5
площадь
327 м2
спален
4
этаж
17 / 17

Район:

Воробьевы горы

Адрес: Мичуринский пр-т 6к2

Предлагается эксклюзивный двухуровневый пентхаус в жилом комплексе "Ломоносов".Планировка: на первом уровне удачно расположились - кухня-гостиная, просторный холл, две спальни, ванная комната с постирочной, гардеробная, второй уровень занимают-...

253 000 000 руб.

+7 (495) 788-03-35
Продолжая работу с сайтом, вы подтверждаете свое согласие на обработку персональных данных и файлов cookie.