На продажу дом в поселке Петрово-Дальнее
ID: 30135

На продажу дом в поселке Петрово-Дальнее

Описание поселка:
Поселок «Петрово-Дальнее» охраняемый поселок бизнес класса. Петрово-Дальнее — одно из легендарных стародачных мест, поистине жемчужину Подмосковья, где вековые лесные массивы соседствуют с широкими просторами Москвы-реки. В минутной доступности расположены фитнес — центр PRIDE, World Class Fitness, детские сады и гимназии в Павлово и Park Ville, многочисленные рестораны Рублево-Успенского шоссе, пансионаты «Петрово-Дальнее» и «Сосны», заповедные территории Усадьбы «Архангельское». Внутри поселка развитая инфраструктура: детские площадки, беседки и лавочки, пестрые цветочные клумбы, площадки под барбекю и прочие мелочи, которые создают приятную атмосферу.

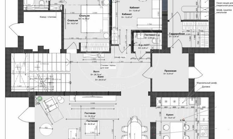
Дом расположен в приватной части посёлка. Благодаря удачному расположению — есть возможность пристроить зимний сад, который сохраняет вид из просторных окон гостиной. С тыльной стороны дома на месте стоянки запроектирован просторный гараж и квартира для прислуги. Таким образом площадь дома составит 400м2

Планировка первого этажа предполагает просторную кухню с выходом на террасу и гостиную с камином.
Благодаря таланту архитектора на первом этаже также удалось разместить полноценную комнату с санузлом, кабинетом и своим отдельным садом.
Ну и конечно постирочную и гардероб.

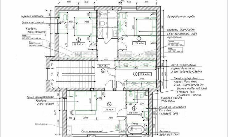
Второй этаж встречает мастер спальней окнами в пол, большим санузлом и гардеробной. Также здесь прекрасно размещаются две спальни со своим санузлом.

Главные окна дома расположены на южную сторону и дом всегда будет полон естественного света, а из окон мастер-спальни можно будет любоваться закатом и хвойным лесом, окружающим посёлок.

 Московская область, Петрово-Дальнее
Смотреть 22 предложения в посёлке Петрово-Дальнее

Оставить заявку

Как к Вам обращаться? (необязательно)
Ваша электронная почта (необязательно)
Номер Вашего телефона (обязательно)
Ваше сообщение (необязательно)
Аналогичные предложения
ID 27578

Эксклюзивная резиденция со SPA-центром

Площадь: 840 м2

Этажей: 2

площадь
840 м2
участок
140 сот.

Посёлок: Петрово-Дальнее

Направление: Ильинское шоссе 14км.

На продажу предлагается роскошная резиденция в охраняемом поселке. Резиденция состоит из основного дома площадью 840 кв.м, SPA центра площадью 777 кв.м с большим крытым бассейном, гаража с...

1 980 000 000 руб.

Возможна аренда 5 550 000 руб. в месяц
ID 31716

На продажу дом в поселке Петрово-Дальнее

Площадь: 554 м2

Этажей: 2

площадь
554 м2
спален
5
участок
6 сот.

Посёлок: Петрово-Дальнее

Направление: Ильинское шоссе 14км.

На продажу предлагается таунхаус в охраняемом коттеджном поселке "Петрово-Дальнее".Планировка дома:Цоколь: гараж на 2 м/м, постирочная, блок для персонала, гардеробная, с/у1 этаж: гостиная-кухня-столовая, с/у, гардеробная, спальня2 этаж: мастер...

58 000 000 руб.

ID 28990

На продажу дом в поселке Петрово-Дальнее

Площадь: 375 м2

Этажей: 2

площадь
375 м2
спален
3
участок
13 сот.

Посёлок: Петрово-Дальнее

Направление: Ильинское шоссе 14км.

На продажу предлагается современный дом в коттеджном поселке Петрово-Дальнее на Рублево-Успенском шоссе. В доме предусмотрено 3 спальни, кухня-столовая, гостиная, кабинет, 4 гардеробные, терраса, гараж.

55 000 000 руб.

ID 26472

На продажу дом в поселке Петрово-Дальнее

Площадь: 300 м2

Этажей: 2

площадь
300 м2
участок
30 сот.

Посёлок: Петрово-Дальнее

Направление: Ильинское шоссе 14км.

ДОМ НАХОДИТСЯ НЕПОСРЕДСТВЕННО НА ТЕРРИТОРИИ ПАНСИОНАТА "ПЕТРОВО-ДАЛЬНЕЕ"! Описание поселка: Петрово-Дальнее обладает современной, развитой инфраструктурой. Здесь расположена одна из лучших подмосковных гимназий, Школа Искусств, огромный крытый спортивный комплекс,...

198 000 000 руб.

Возможна аренда 350 000 руб. в месяц
ID 27307

На продажу таунхаус в поселке Петрово-Дальнее

Площадь: 360 м2

Этажей: 3

площадь
360 м2
участок
1 сот.

Посёлок: Петрово-Дальнее

Направление: Ильинское шоссе 14км.

Описание посёлка: Петрово-Дальнее обладает современной, развитой инфраструктурой. Здесь расположена одна из лучших подмосковных гимназий, Школа Искусств, огромный крытый спортивный комплекс, Дворец культуры, клиника с высококвалифицированными специалистами. Петрово-Дальнее...

112 000 000 руб.

ID 28992

На продажу дом в поселке Петрово-Дальнее

Площадь: 513 м2

Этажей: 2

площадь
513 м2
спален
4
участок
12 сот.

Посёлок: Петрово-Дальнее

Направление: Ильинское шоссе 14км.

На продажу предлагается дом в поселке Петрово Дальнее. Дом под отделку, планировкой предусмотрено 4 спальни, кухня-столовая, терраса, гараж.

59 900 000 руб.

+7 (495) 925-33-77
Продолжая работу с сайтом, вы подтверждаете свое согласие на обработку персональных данных и файлов cookie.