На продажу дом в поселке Курорт Пирогово
ID: 28559

На продажу дом в поселке Курорт Пирогово

На продажу предлагается дом на кромке поля для гольфа в закрытом премиальном поселке Курорт Пирогово на Осташковском шоссе.
Уютный и элегантный особняк спроектирован, построен и меблирован премиальной итальянской компанией Pagano.
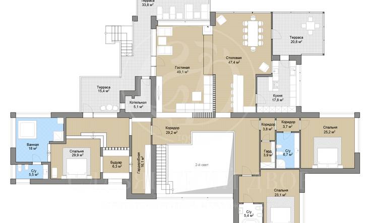
В доме выполнен дизайнерский ремонт в современном стиле с панорамным остеклением и видом на гольф-поле, грамотная планировка: 4 спальни, просторная и светлая гостиная со вторым светом и выходом на террасу, SPA-зона: бассейн с водопадом и зоной отдыха, сауна и хамам. На участке, расположенном в тихом и уединенном месте на краю поселка, выполнен ландшафтный дизайн. Участок примыкает к гольф-полю.

Планировка дома:
1 этаж: гараж на 2 м/м, бассейн, сауна, душ, хамам, кинозал, винный погреб, спальня для персонала с с/у, бойлерная, помещение с резервным генератором, несколько технических помещений.
2 этаж: Хозяйская спальня с выходом на террасу, с будуаром, гардеробной и ванной с угловым остеклением; гостиная, столовая с выходом на террасу, кухня, две спальни с индивидуальными с/у, котельная, террасы.

Дом Pagano -это здание настолько наполнено светом, что кажется, будто оно парит над землёй. Внутри - квинтэссенция уюта, созданная с применением новейших технологий.
Виктория Толмачева
 Московская область, Курорт Пирогово
Смотреть 8 предложений в посёлке Курорт Пирогово

Оставить заявку

Как к Вам обращаться? (необязательно)
Ваша электронная почта (необязательно)
Номер Вашего телефона (обязательно)
Ваше сообщение (необязательно)
Аналогичные предложения
ID 31815

Дом в премиальном поселке Курорт ПИРогово на берегу озера Клязьминскогно водохранилища!

Площадь: 687 м2

площадь
687 м2
участок
32 сот.

Посёлок: Курорт Пирогово

Направление: Дмитровское шоссе 17км.

Деревянный загородный дом площадью 687 кв.м под ключ с мебелью построен на лесном участке с ландшафтный дизайном и прудом 32,1 сотки в коттеджном поселке "Курорт Пирогово". На...

482 000 000 руб.

ID 31595

Одноэтажный дом нового формата в поселке на берегу Клязьминского водохранилища

Площадь: 321 м2

Этажей: 1

площадь
321 м2
спален
4
участок
21 сот.

Посёлок: Курорт Пирогово

Направление: Дмитровское шоссе 17км.

Одноэтажный дом спроектирован в стиле шале 321 кв м , для которого характерны простота, лаконичность и уют. Альпийскую тему продолжает панорамное остекление гостиной и две просторные террасы...

394 000 000 руб.

Эксклюзив
Спецпредложение
ID 31795

Редкое предложение! Новый дом в один этаж!

Площадь: 1800 м2

Этажей: 2

площадь
1800 м2
участок
50 сот.

Посёлок: Агаларов Эстейт

Направление: Новорижское шоссе 24км.

На продажу предлагается абсолютно новый дом в 1 этаж от известного архитектурного бюро.Функциональная планировка:Основной этаж: Холл, гардеробная, гостевой санузел.Гостиная, столовая, профессиональная и основная кухни.Мастер блок: кабинет, спальня,...

2 010 000 000 руб.

ID 29256

Сосновый бор. Авторский проект на огромном участке

Площадь: 2038 м2

Этажей: 3

площадь
2038 м2
спален
6
участок
70 сот.

Посёлок: Сосновый Бор

Направление: Рублево-Успенское шоссе 21км.

Описание дома:Представляем Вашему вниманию уникальный дом, созданный по проекту и построен под авторским надзором знаменитого итальянского архитектора и дизайнера Гульельмо Беркиччи (Guglielmo Berchicci).При строительстве дома использовались только...

1 000 000 000 руб.

Эксклюзив
Спецпредложение
ID 20063

На продажу дом в поселке Сады Майендорф (бывшая территория санатория Барвиха)

Площадь: 1300 м2

площадь
1300 м2
спален
4
участок
50 сот.

Посёлок: Сады Майендорф (бывшая территория санатория Барвиха)

Направление: Рублево-Успенское шоссе 7км.

На продажу предлагается роскошный дом на участке 0,5 га в закрытом элитном поселке Сады Майендорф (Санаторий Барвиха). В доме 4 спальни с ванными и гардеробными комнатами, просторная...

2 010 000 000 руб.

ID 28967

На продажу дом в поселке Сады Майендорф (бывшая территория санатория Барвиха)

Площадь: 2100 м2

Этажей: 3

площадь
2100 м2
спален
7
участок
142 сот.

Посёлок: Сады Майендорф (бывшая территория санатория Барвиха)

Направление: Рублево-Успенское шоссе 7км.

Уникальный особняк площдью 2100 кв.м. выполненный в современном стиле на обширном лесном участке 142 сот с дорожками из клинкерной брусчатки ручной формовки Klinkerwerke Muhr. Дом полностью готов...

3 380 000 000 руб.

+7 (495) 925-33-77
Продолжая работу с сайтом, вы подтверждаете свое согласие на обработку персональных данных и файлов cookie.