Предлагается на продажу коммерческое помещение в Клубном Доме на Сретенке
ID: 14149

Предлагается на продажу коммерческое помещение в Клубном Доме на Сретенке

Оставить заявку
Max

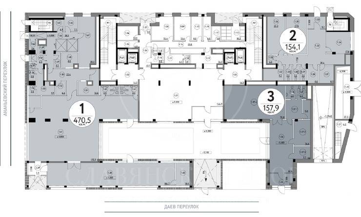
Общая площадь помещения 154, 1 кв.м. Помещение №2
«Клубный дом на Срeтенке»
находится по адресу: Даев переулок дом19.
7мин. от метро «Сухаревская» пешком
•3 мин от метро на автомобиле
•3,6 км до Третьего транспортного кольца
•Авторский проект мастерской «ЦимайлоЛяшенко и партнеры»
•Электрическая мощность -200 Вт/кв. м

Оставить заявку
Max
 Даев пер., Москва, Россия

Оставить заявку

Как к Вам обращаться? (необязательно)
Ваша электронная почта (необязательно)
Номер Вашего телефона (обязательно)
Ваше сообщение (необязательно)
Аналогичные предложения
ID 11824

Продажа офиса в Деловом центре Парк Победы

Площадь: 1507 м2

Этаж: 6 / 14

площадь
1507 м2
этаж
6 / 14

Район:

Парк победы

Адрес: Москва, Россия

Продажа офисного помещения в многофункциональном комплексе, на шестом этаже. Помещение с открытой планировкой без отделки. Гостинично-деловой комплекс включает в себя: бизнес-центр, отель, апартаменты, фитнес центр и торгово-развлекательную...

392 000 000 руб.

Снижение цены
Спецпредложение
ID 14548

Продажа офиса МФК Москва-Сити Башня Москва

Площадь: 224 м2

Этаж: 42 / 74

площадь
224 м2
этаж
42 / 74

Район:

Деловой центр, Международная

Адрес: Москва, Россия

МФК Москва Сити - это одно из новейших и популярных мест столицы, представляющий собой совокупность бизнес-центров, комплексов, развлекательных и выставочных центров, расположенных на Пресненской набережной. Башни комплекса...

85 000 000 руб.

Спецпредложение
ID 14304

Продажа офисов в новом Бизнес-Центре. СЗАО. м. Аэропорт

Площадь: 120 м2

Этаж: 8 / 39

площадь
120 м2
этаж
8 / 39

Район:

Аэропорт

Адрес: Москва, Россия

Новый БЦ "Арена ЦСК"состоит из трех зданий: 38-этажной круглой Golden Tower (34 тыс. кв. м) , и двух 11-этажных объектов Blue Tower и Red Tower площадью 13...

27 600 000 руб.

ID 14278

Видовой офис на Пречистенской набережной

Площадь: 375 м2

Этаж: 2 / 6

площадь
375 м2
этаж
2 / 6

Район:

Кропоткинская

Адрес: Пречистенская наб.

В продажу предлагается офисное помещение общей площадью 375 кв.м в бизнес-центре класса А на Остоженке. Бизнес-центр является частью современного (2009 год постройки) элитного комплекса «Баркли Плаза», который...

431 000 000 руб.

Снижение цены
Спецпредложение
ID 14298

Ваш офис в Замоскворечье

Площадь: 166 м2

Этаж: 1 / 8

площадь
166 м2
этаж
1 / 8

Район:

Новокузнецкая, Третьяковская

Адрес: Москва, Россия

Продажа офисного помещения на первом этаже элитного, клубного дома в Кадашевском переулке (ЦАО). Площадь помещения 166,3 кв.м., открытая планировка. Имеется 2 входа. Территория комплекса огорожена, круглосуточная охрана....

69 800 000 руб.

ID 11820

Продажа офиса в бизнес-центре класса В+.В шаговой доступности от м. Парк Победы!

Площадь: 854 м2

Этаж: 4 / 15

площадь
854 м2
этаж
4 / 15

Район:

Парк победы

Адрес: Москва, Россия

Предлагается к продаже офисное помещение в современном бизнес-центре Парк Победы, общая площадь 854,5 кв.м. Помещение с открытой планировкой без отделки. Гостинично-деловой комплекс включает в себя: бизнес-центр, отель,...

222 000 000 руб.

+7 (495) 228-03-36
Продолжая работу с сайтом, вы подтверждаете свое согласие на обработку персональных данных и файлов cookie.