Поселок Монтевиль
Самый романтичный поселок системы Вилладжио на берегах реки Беляна. Километры прогулочных набережных, озера, парки, детские и спортивные зоны. Окружен внешней инфраструктурой и инфраструктурой поселков, входящих в систему: КП Гринфилд с огромным озером, пляжем и рестораном, КП Парк Авеню с большим количеством инфраструктуры для детей.
Кристина Волина

Продажа домов

ID 32073

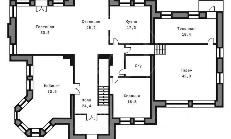
На продажу дом в поселке Монтевиль

Площадь: 550 м2

Этажей: 3

площадь
550 м2
участок
20 сот.

Направление: Новорижское шоссе 20км.

На продажу предлагается элегантный загородный дом площадью 550 кв.м. на ухоженном участке 20 соток. Идеальная планировка, изысканная отделка и качественная мебель создают атмосферу уюта и респектабельности. Планировка...

270 000 000 руб.

ID 31604

На продажу дом в поселке Монтевиль

Площадь: 500 м2

площадь
500 м2
участок
19 сот.

Направление: Новорижское шоссе 20км.

На продажу предлагается комфортный семейный дом в коттеджном посёлке Монтевиль.Дизайнерский ремонт в светлых тонах, вся мебель и техника от известных производителей.Планировка:1 этаж: прихожая, гардеробная, кабинет, с/у, гостиная...

145 000 000 руб.

Возможна аренда 750 000 руб. в месяц
ID 31028

Современный дом в поселке с озером

Площадь: 430 м2

Этажей: 2

площадь
430 м2
спален
4
участок
10 сот.

Направление: Новорижское шоссе 20км.

На продажу предлагается современный дом в охраняемом коттеджном поселке Монтевиль на Новорижском шоссе.Планировка дома:1 этаж: гостиная-кухня (с камином), прихожая, гостевая комната, гардеробная, с/у, гараж, котельная, кладовая2 этаж:...

235 000 000 руб.

ID 31734

Новый современный деревянный дом в поселке премиум класса

Площадь: 300 м2

Этажей: 2

площадь
300 м2
спален
4
участок
10 сот.

Направление: Новорижское шоссе 20км.

На продажу предлагается современный дом в КП "Монтевиль".По планировке предусмотрено 4 спальни, гостиная с каминным залом, кухня-столовая с выходом на крытую террасу. Мебель, свет и бытовая техника...

220 000 000 руб.

ID 29845

На продажу дом в поселке Монтевиль

Площадь: 976 м2

площадь
976 м2
участок
47 сот.

Направление: Новорижское шоссе 20км.

На продажу предлагается дом в классическом стиле на утопающем в зелени участке. В доме выполнен дизайнерский ремонт, отделка с использованием натуральных материалов. Из окон открываются потрясающие виды....

550 000 000 руб.

ID 30634

Стильный, новый дом в поселке премиум класса!

Площадь: 400 м2

Этажей: 3

площадь
400 м2
спален
4
участок
10 сот.

Направление: Новорижское шоссе 20км.

На продажу предлагается современный дом в охраняемом коттеджном поселке Монтевиль на Новой Риге. В доме выполнен дизайнерский ремонт, премиальная мебель и техника.Планировка дома:1 этаж: прихожая, с/у, кладовая,...

199 000 000 руб.

ID 31346

Современный дом в живописном, камерном поселке

Площадь: 480 м2

Этажей: 2

площадь
480 м2
спален
4
участок
17 сот.

Направление: Новорижское шоссе 20км.

Предлагается новый дом под ключ в элитном посёлке Монтевиль. Дом находится в самой лучшей локации посёлка, у озера. Фасад облицован клинкерной плиткой, по периметру сделана подсветка. В...

240 000 000 руб.

ID 31530

На продажу дом в поселке Монтевиль

Площадь: 250 м2

площадь
250 м2
участок
9 сот.

Направление: Новорижское шоссе 20км.

На продажу предлагается современный одноэтажный дом в охраняемом коттеджном поселке Монтевиль на Новой Риге. Все коммуникации центральные, газ заведён в дом. Высокие потолки, панорамные окна. Использованы натуральные...

74 900 000 руб.

ID 29817

Новый современный дом рябом с озером!

Площадь: 360 м2

Этажей: 2

площадь
360 м2
спален
4
участок
13 сот.

Направление: Новорижское шоссе 20км.

На продажу предлагается уникальный современный дом "под ключ" 360 кв.м. в поселке Монтевиль.

250 000 000 руб.

ID 31404

На продажу дом в поселке Монтевиль

Площадь: 941 м2

площадь
941 м2
участок
16 сот.

Направление: Новорижское шоссе 20км.

На продажу предлагается современный дом в охраняемом коттеджном поселке Монтевиль. Планировка дома:1 этаж: холл, гардеробная, кухня-столовая-гостиная, гостевая спальня с с/у и гардеробной, кабинет,бассейн, сауна, с/у, комната отдыха,...

329 000 000 руб.

ID 30982

Современный дом в отличном поселке

Площадь: 700 м2

Этажей: 3

площадь
700 м2
спален
5
участок
20 сот.

Направление: Новорижское шоссе 20км.

Предлагается новый дом в элитном поселке Монтевиль, дом предлагается в готовности под ключ частично меблирован, завершена внутренняя отделка, ожидает новых хозяев, современная кухня, все готово к благоустройству...

190 000 000 руб.

ID 25949

Дом под отделку в поселке Монтевиль

Площадь: 270 м2

Этажей: 2

площадь
270 м2
спален
4
участок
14 сот.

Направление: Новорижское шоссе 20км.

Описание поселка: Элитный поселок находится в окружении живописного леса, всего в 23 километрах от МКАД по Новорижскому шоссе, одной из лучших подмосковных трасс с высококачественным дорожным покрытием,...

65 000 000 руб.

ID 25964

На продажу дом в поселке Монтевиль

Площадь: 365 м2

Этажей: 2

площадь
365 м2
участок
13 сот.

Направление: Новорижское шоссе 20км.

Описание дома: На продажу предлагается коттедж "под ключ" 365 кв.м. на лесном участке 13 соток. Планировка дома: 1 этаж: прихожая, гардеробная, холл, кабинет, с/у, котельная с отдельным...

119 000 000 руб.

ID 25953

На продажу дом в поселке Монтевиль

Площадь: 380 м2

Этажей: 2

площадь
380 м2
спален
4
участок
19 сот.

Направление: Новорижское шоссе 20км.

Описание поселка: Элитный поселок находится в окружении живописного леса, всего в 23 километрах от МКАД по Новорижскому шоссе, одной из лучших подмосковных трасс с высококачественным дорожным покрытием,...

125 000 000 руб.

ID 25956

На продажу дом в поселке Монтевиль

Площадь: 422 м2

Этажей: 3

площадь
422 м2
участок
18 сот.

Направление: Новорижское шоссе 20км.

Описание поселка: Элитный поселок находится в окружении живописного леса, всего в 23 километрах от МКАД по Новорижскому шоссе, одной из лучших подмосковных трасс с высококачественным дорожным покрытием,...

170 000 000 руб.

ID 25967

На продажу дом в поселке Монтевиль

Площадь: 538 м2

Этажей: 3

площадь
538 м2
участок
31 сот.

Направление: Новорижское шоссе 20км.

Описание поселка: Элитный поселок находится в окружении живописного леса, всего в 23 километрах от МКАД по Новорижскому шоссе, одной из лучших подмосковных трасс с высококачественным дорожным покрытием,...

180 000 000 руб.

Аренда домов

ID 28757

В аренду дом в поселке Монтевиль

Площадь: 420 м2

Этажей: 2

площадь
420 м2
спален
3
участок
18 сот.

Направление: Новорижское шоссе 20км.

В аренду предлагается абсолютно новый дом. Качественная отделка, дорогие материалы, просторные светлые помещения, продуманная до мелочей планировка дома. Планировка дома: 1 этаж: холл, гостиная с камином и...

600 000 руб.

ID 31918

В аренду дом в поселке Монтевиль

Площадь: 512 м2

площадь
512 м2
участок
20 сот.

Направление: Новорижское шоссе 20км.

В аренду предлагается дом "под ключ" 512 кв.м. на участке с ландшафтным дизайном 19,82 сотки в поселке Монтевиль

750 000 руб.

Возможна продажа 180 000 000 руб.
ID 29341

В аренду дом в поселке Монтевиль

Площадь: 450 м2

Этажей: 2

площадь
450 м2
спален
5
участок
12 сот.

Направление: Новорижское шоссе 20км.

Описание посёлка Элитный поселок находится в окружении живописного леса, всего в 23 километрах от МКАД по Новорижскому шоссе, одной из лучших подмосковных трасс с высококачественным дорожным покрытием,...

550 000 руб.

ID 29076

В аренду дом в поселке Монтевиль

Площадь: 450 м2

площадь
450 м2
участок
25 сот.

Направление: Новорижское шоссе 20км.

В аренду предлагается дом в поселке Монтевиль на Новорижском шоссе. Планировка дома:1 этаж: холл, кухня -столовая, гостиная, кабинет, с/у.2 этаж: 4 спальни, 3 с/у (2 ванных; 2...

600 000 руб.

ID 28784

В аренду дом в поселке Монтевиль

Площадь: 450 м2

площадь
450 м2
спален
4
участок
25 сот.

Направление: Новорижское шоссе 20км.

В аренду предлагается дом в поселке Монтевиль на Новорижском шоссе. Планировка дома:1 этаж: холл, кухня -столовая, гостиная, кабинет, с/у.2 этаж: 4 спальни, 3 с/у (2 ванных; 2...

800 000 руб.

ID 30099

Современно!

Площадь: 500 м2

Этажей: 2

площадь
500 м2
спален
5
участок
18 сот.

Направление: Новорижское шоссе 20км.

Элитный поселок находится в окружении живописного леса, всего в 23 километрах от МКАД по Новорижскому шоссе, одной из лучших подмосковных трасс с высококачественным дорожным покрытием, отсутствием светофоров...

520 000 руб.

ID 30315

Дом в красивом поселке

Площадь: 450 м2

Этажей: 2

площадь
450 м2
участок
18 сот.

Направление: Новорижское шоссе 20км.

В аренду предлагается уютный дом в охраняемом коттеджном поселке Монтевиль на Новой Риге.В доме выполнен дизайнерский ремонт. Грамотная планировка: 4 спальни, каждая со своим с/у, просторная гостиная...

750 000 руб.

ID 30328

Дом в Монтевиле

Площадь: 320 м2

площадь
320 м2
участок
15 сот.

Направление: Новорижское шоссе 20км.

В аренду предлагается дом в охраняемом коттеджном поселке Монтевиль на Новой Риге. В доме выполнен дизайнерский ремонт, грамотная планировка. Планировка дома:1 этаж: прихожая, холл, гостиная с камином,...

450 000 руб.

Земля

ID 29287

Участок в поселке Монтевиль

Участок: 16 сот.

участок
16 сот.

Направление: Новорижское шоссе 20км.

Монтевиль эксклюзивный поселок с роскошным парковым ансамблем и прогулочными территориями вдоль реки с собственным выходом в лес. Описание участка: ровный участок, 15 соток, в центральной части поселка,...

295 000 000 руб.

Расположение и инфраструктура

О коттеджном поселке

Характеристики поселка

Населённый пункт:
Цена продажи от:

25 000 000 руб.

ID Объекта:
745
Телефон:

Обзор коттеджного поселка

Monteville — коттеджный поселок класса «премиум», расположенный в 23 км от Москвы. Добраться до него удобно по скоростному Новорижскому шоссе. Общая площадь поселка составляет 114 га, на которых построено 260 современных домов.

Месторасположение

Местоположение Monteville исключительно удачно: поселок находится в экологически благополучном Истринском районе, рядом с реликтовым подмосковным лесом и живописной речкой Беляна, которая протекает по территории поселка. Водоемы и природные ландшафты создают уникальную атмосферу уединения и гармонии с природой.

Архитектура и застройка

Застройка выполнена в едином архитектурном стиле с акцентом на элегантную и изысканную классику, подчеркивающую презентабельность и высокий статус поселка.

Характеристики домовладений:

  • Площадь домов — от 380 до 800 м2
  • Площадь земельных участков — от 50 соток

При строительстве использованы высококачественные материалы:

  • Керамический кирпич
  • Монолитный железобетон
  • Черепица марки Tegola

Фасады отделаны в приятных естественных тонах, что делает поселок органичным элементом живописных подмосковных пейзажей.

Благоустройство и ландшафтный дизайн

Поселок разделён на четыре квартала, объединённые общей прогулочной зоной — уютным и живописным парком. На территории выполнено высококачественное благоустройство:

  • Лесные деревья и ухоженные газоны
  • Клумбы, цветники и декоративные насаждения
  • Водные каналы с декоративными мостиками
  • Фонтаны и прогулочные аллеи
  • Беседки для барбекю и отдыха
  • Уличное освещение и вымощенные плиткой дороги
  • Индивидуальный подъезд к каждому коттеджу

Безопасность

Территория поселка огорожена высоким забором и находится под охраной. Въезд осуществляется только через КПП по индивидуальным пропускам. Обеспечение безопасности включает:

  • Службу охраны
  • Современные системы видеонаблюдения
  • Патрулирование территории

Инфраструктура

Monteville располагает развитой внутренней инфраструктурой:

  • Магазины и предприятия бытового обслуживания
  • Спортивный комплекс известной сети
  • Оздоровительный центр с сауной, бассейном и солярием
  • Ресторан с акцентом на изысканные рыбные блюда
  • Детский клуб с услугами няни
  • Пляж с лодочной станцией

В непосредственной близости от поселка также находятся:

  • Престижные школы и гимназии
  • Частные детские сады
  • Торговые и спортивные центры

Инженерные коммуникации

Уровень технического оснащения соответствует самым высоким стандартам:

  • Водоснабжение — от артезианской скважины
  • Магистральный газ
  • Центральная канализация
  • Телефонная связь с московскими номерами
  • Высокоскоростной интернет

Преимущества Monteville

  • Большая и ухоженная территория в живописной природной зоне
  • Развитая внутренняя и внешняя инфраструктура
  • Высокий уровень безопасности и конфиденциальности
  • Отличная транспортная доступность — до МКАД 23 км без светофоров, что обеспечивает быструю и комфортную дорогу в Москву
+7 (495) 925-33-77
Продолжая работу с сайтом, вы подтверждаете свое согласие на обработку персональных данных и файлов cookie.