Дом в классическом стиле
ID: 32395

Дом в классическом стиле

Оставить заявку
Max

Особняк в классическом стиле с патио. Дом подойдет для большой семьи.
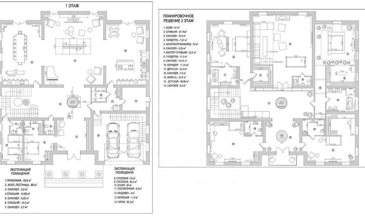
Планировка:
1 этаж: входная группа с гардеробной для сезонных вещей; центральный зал с парадной лестницей; столовая-гостиная-кухня и зона черновой кухни; гостевая спальня с санузлом и гардеробной; гостевой санузел; потайная комната для персонала со своим санузлом с входом под лестницей; помещения для постирочной и котельной, гараж
2 этаж: мастер-блок с гардеробной и большой ванной комнатой; вторая спальня с гардеробной и ванной комнатой; 2 детских с ванными комнатами и гардеробными; большая гостиная/домашний кинотеатр, санузел

Отличный особняк для большой семьи. Можно также сделать прекрасную эксплуатируемую кровлю и разместить там зону отдыха.
Денис Компаниец
Оставить заявку
Max
 Московская область, Миллениум парк
Смотреть 67 предложений в посёлке Миллениум парк

Оставить заявку

Как к Вам обращаться? (необязательно)
Ваша электронная почта (необязательно)
Номер Вашего телефона (обязательно)
Ваше сообщение (необязательно)
Аналогичные предложения
ID 26381

Новый стильный дом в Миллениум парк!

Площадь: 670 м2

Этажей: 2

площадь
670 м2
спален
5
участок
15 сот.

Посёлок: Миллениум парк

Направление: Новорижское шоссе 24км.

На продажу предлагается стильный дом в охраняемом коттеджном поселке Миллениум парк на Новой Риге.Планировка дома:1 этаж: кухня, столовая, холл, TV-зона, прихожая, гардероб, с/у, зимняя веранда, гараж, котельная,...

395 000 000 руб.

ID 31253

Лучшее предложение в поселке Миллениум парк

Площадь: 650 м2

Этажей: 2

площадь
650 м2
спален
5
участок
15 сот.

Посёлок: Миллениум парк

Направление: Новорижское шоссе 24км.

На продажу предлагается стильный современный дом в охраняемом коттеджном поселке Миллениум парк на Новой Риге. В доме выполнен дизайнерский ремонт.Планировка дома:1 этаж: 3 гардероба, кабинет, гостевая спальня,...

430 000 000 руб.

ID 32344

Лучшее предложение в Миллениум парк!

Площадь: 1066 м2

Этажей: 2

площадь
1066 м2
спален
5
участок
21 сот.

Посёлок: Миллениум парк

Направление: Новорижское шоссе 24км.

На продажу предлагается дом в КП "Миллениум парк". В отделке использованы качественные материалы, мебель и техника известных брендов. Панорамное остекление Alutech. Сантехника премиальных итальянский и испанский марок:...

1 300 000 000 руб.

ID 32330

На продажу дом в поселке Миллениум парк

Площадь: 1300 м2

Этажей: 3

площадь
1300 м2
участок
32 сот.

Посёлок: Миллениум парк

Направление: Новорижское шоссе 24км.

На продажу предлагается уникальная резиденция в охраняемом коттеджном поселке "Миллениум парк"Планировка дома: 1 уровень: холл, гардеробная. с/у, кухня (основная кухня + столовая + закрытая веранда и открытая...

570 000 000 руб.

Возможна аренда 3 300 000 руб. в месяц
ID 28427

Эксклюзивный дизайнерский ремонт

Площадь: 541 м2

Этажей: 2

площадь
541 м2
спален
4
участок
25 сот.

Посёлок: Миллениум парк

Направление: Новорижское шоссе 24км.

На продажу дом, выполненный по проекту «Бабен-Баден» в поселке Миллениум парк на Новорижском шоссе.Планировка дома:1 этаж: прихожая, холл, гостиная, столовая, кухня, кабинет, 2 гардеробных, 1 с/у, кладовая,...

275 000 000 руб.

ID 29109

Отличное место для жизни загородом

Площадь: 1650 м2

Этажей: 3

площадь
1650 м2
спален
9
участок
40 сот.

Посёлок: Миллениум парк

Направление: Новорижское шоссе 24км.

Все постройки на участке выполнены в скандинавском архитектурном стиле (кирпич + монолитные перекрытия). Основной отделочный материал – камень и дерево (лиственница).Участок расположен в завершённой части поселка, удаленной...

466 000 000 руб.

+7 (495) 925-33-77
Продолжая работу с сайтом, вы подтверждаете свое согласие на обработку персональных данных и файлов cookie.