Продажа арендный бизнес. Северо-Восток, м.Свиблово
ID: 11476

Продажа арендный бизнес. Северо-Восток, м.Свиблово

Оставить заявку
Max

Продажа арендного бизнеса.
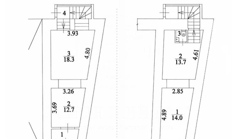
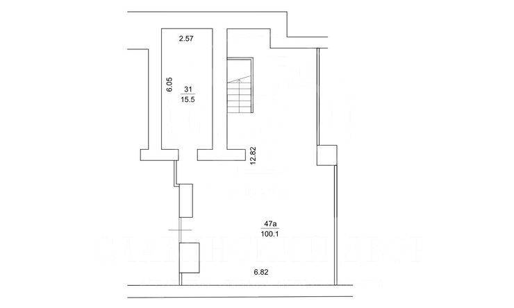
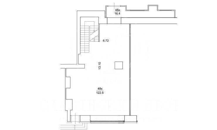
Предлагается в продажу отдельно стоящее двухэтажное здание с арендатором общей пл. 1 845,7 кв.м. Выделенная мощность 400 кВт. В аренде на 49 лет с 2005 года земельный участок пл. 1741,2 м2. Объект окружен массовой жилой застройкой, расположен на пути сформированных пешеходных и автомобильных маршрутов, в непосредственной близости от многочисленных остановок общественного транспорта. Рядом находятся дошкольные и общеобразовательные учреждения.

Оставить заявку
Max
 Москва, Россия

Оставить заявку

Как к Вам обращаться? (необязательно)
Ваша электронная почта (необязательно)
Номер Вашего телефона (обязательно)
Ваше сообщение (необязательно)
Аналогичные предложения
Снижение цены
Спецпредложение
ID 10556

Продажа арендного бизнеса. БЦ «Гранд Сетунь плаза». м. Кунцевская

Площадь: 240 м2

Этаж: 3 / 10

площадь
240 м2
этаж
3 / 10

Район:

Кунцевская, Молодежная

Адрес: Москва, Россия

«ГРАНД СЕТУНЬ ПЛАЗА» -бизнес-центр класса «В+», расположен в ЗАО г. Москвы, в районе деловой активности. Современное здание спроектировано на основе «открытого пространства». Развитая инфраструктура делового комплекса предоставляет...

28 800 000 руб.

ID 14217

Арендный бизнес на набережной

Площадь: 302 м2

Этаж: 1 / 2

площадь
302 м2
этаж
1 / 2

Район:

Спортивная

Адрес: Москва, Россия

Продажа готового арендного бизнеса - отдельностоящее здание с арендатором. Расположение: первая линия Лужнецкого проезда, на территории старинного особняка в тихом и спокойном районе, недалеко от метро «Спортивная»....

Цена по запросу

ID 14455

Продажа здания с собственной территорией в районе Арбата

Площадь: 840 м2

Этажей: 4

площадь
840 м2
этаж
/ 4

Район:

Арбатская

Адрес: Москва, Россия

Продается уникальный 4-х этажный особняк в самом центре Москвы! Площадь: 840 кв.м. Огороженная территория, земля в собственности-724 кв.м. Состоит из 6 квартир. Не является памятником архитектуры. Возможно...

618 000 000 руб.

ID 11419

Арендный бизнес на Полянке

Площадь: 47 м2

Этаж: 2 / 6

площадь
47 м2
этаж
2 / 6

Район:

Полянка

Адрес: Москва, Россия

В бизнес-центре "Полянка 7" продается офисное помещение с отделкой пл. 47,1 кв.м с арендатором Расположение: ст.м. Полянка - 4 минуты пешком, ст.м. Третьяковская - 5 минут пешком...

14 800 000 руб.

ID 11047

Продажа арендного бизнеса ул. Спиридоновка

Площадь: 105 м2

Этаж: 1 / 12

площадь
105 м2
этаж
1 / 12

Район:

Пушкинская

Адрес: Москва, Россия

Помещение с большими витринами, отдельным входом, высокими потолками на 1-ой фасадной линии в центре Патриарших прудов. Фасад хорошо просматривается с пересечения Спиридоновки и Гранатного переулка. Рядом с...

120 000 000 руб.

ID 14439

Готовый арендный бизнес. Продажа ресторана на Арбате

Площадь: 269 м2

Этаж: 1 / 4

площадь
269 м2
этаж
1 / 4

Район:

Арбатская

Адрес: Арбат

Предлагается на продажу арендный бизнес на улице Арбат. Помещение расположено в 2-х уровнях (1 и 2 этажи) 4-этажного нежилого дома. Фасад выходит на Арбат и Абатский переулок....

471 000 000 руб.

+7 (495) 228-03-36
Продолжая работу с сайтом, вы подтверждаете свое согласие на обработку персональных данных и файлов cookie.