Продажа представительского особняка на Полянке
ID: 10561

Продажа представительского особняка на Полянке

Оставить заявку
Max

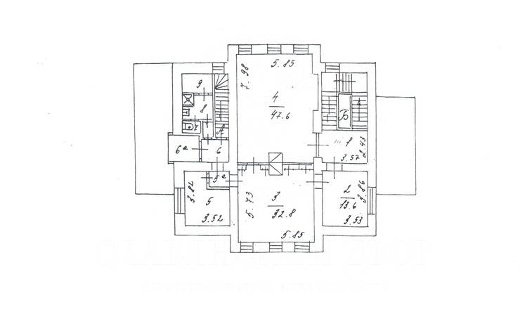
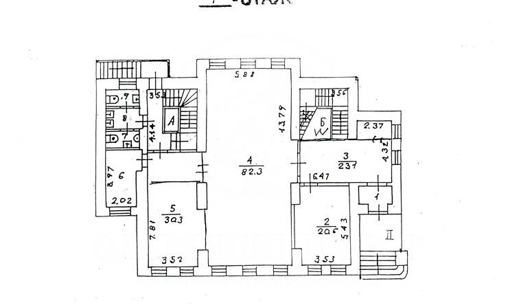
В красивейшем районе Замоскворечье расположился уникальный двухэтажный особняк — гостевой домик Петра I. Здесь царит атмосфера истинной роскоши: на полу выложен паркет, выполнена венецианская отделка стен, расставлена мебель в стиле XVIII века и установлен стол для бильярда. Кабинет директора полностью меблирован и украшен камином. Здание имеет основной парадный вход и дополнительный с парковки. Удачное расположение, близость к крупным магистралям и богатство внутреннего облика делают этот объект одним из престижнейших и презентабельных во всей Москве. Общая площадь здания 561 кв.м. Полная реконструкция, в отделке применялись дорогие натуральные материалы: мрамор, дорогие сорта камней, натуральное дерево, богатая входная группа, первая линия домов, удобные подъездные пути. Современная инженерия, центральная система приточно-вытяжной вентиляции и кондиционирования, выделенные линии Интернет, установлена мини-АТС, система видеонаблюдения, контроля доступа. Охраняемая наземная парковка на 15 м/м.


Наличие огороженной территории и большой парковки дает большой плюс данному предложению
Светлана Губанова
Оставить заявку
Max
 Москва, Россия

Оставить заявку

Как к Вам обращаться? (необязательно)
Ваша электронная почта (необязательно)
Номер Вашего телефона (обязательно)
Ваше сообщение (необязательно)
Аналогичные предложения
ID 10691

Продажа представительского особняка с бассейном в центре Москвы

Площадь: 1450 м2

Этаж: 2 / 3

площадь
1450 м2
этаж
2 / 3

Район:

Парк Культуры

Адрес: Москва, Россия

Площадь здания 1 450 кв.м. Этажность: Два этажа, цоколь, мансарда. Объемно-планировочные решения: первый и мансардный этаж: рабочая зона. Второй этаж: рабочая зона и зона отдыха. Цокольный этаж:...

Цена по запросу

ID 14418

Продажа здания с огороженной территорией. м. Проспект Мира

Площадь: 2274 м2

Этаж: 1 / 3

площадь
2274 м2
этаж
1 / 3

Район:

Проспект Мира

Адрес: Капельский пер.

В продажу предлагается новый трехэтажный особняк общей площадью 2 274,3 кв.м в Капельском переулке. Особняк в классическом стиле. Здание в четырех уровнях: три наземных и один подземный....

Цена по запросу

ID 10050

Продажа представительского особняка у Кремля

Площадь: 6420 м2

Этажей: 5

площадь
6420 м2
этаж
0 / 5

Район:

Кропоткинская

Адрес: Волхонка

Особняк с исключительным местоположением в самом центре Москвы на улице Волхонка. Из окон верхних этажей открывается изумительные виды на исторические символы страны Кремль и Храм Христа Спасителя,...

Цена по запросу

ID 11648

Старинный особняк XIX века

Площадь: 853 м2

Этажей: 3

площадь
853 м2
этаж
0 / 3

Район:

Тургеневская

Адрес: Москва, Россия

Предлагается особняк площадью 853 кв.м, расположенный в историческом центре Москвы в двух километрах от Красной площади. В здании проведена полная реконструкция. В ходе реконструкции внутренних помещений сохранены...

Цена по запросу

Спецпредложение
ID 14410

Продажа здания на Садовом кольце

Площадь: 506 м2

Этажей: 3

площадь
506 м2
этаж
/ 3

Район:

Курская

Адрес: Казакова

Особняк на улице Казакова, представляет собой офисное здание, расположенное в ЦАО г. Москвы, рядом со станцией метро "Курская". Двухэтажное здание с мансардой и цоколем реконструировано и имеет...

Цена по запросу

Возможна аренда Цена по запросу в месяц
ID 14164

Уникальный особняк Vazari Villa на Новослободской

Площадь: 508 м2

Этаж: 1 / 2

площадь
508 м2
этаж
1 / 2

Район:

Новослободская

Адрес: Угловой пер.

VAZARI VILLA это многофункциональное event-пространство, предназначенное для проведения деловых презентаций и тренингов, коктейлей и вечеринок, банкетов и выставок, разнообразных мастер-классов и других образовательных и развлекательных мероприятий. VAZARI...

Цена по запросу

+7 (495) 228-03-36
Продолжая работу с сайтом, вы подтверждаете свое согласие на обработку персональных данных и файлов cookie.