Трансформаторное пространство

Оставить заявку
Max

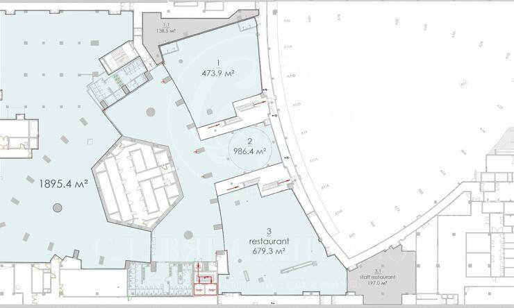
Концепция проекта
Аренда помещений– 3 и – 4 этажа позволяет проводить мероприятия разного формата:
— Выставки;
— Галереи;
— Лектории;
— Конференции;
— Рекламных компаний или презентаций;
— Детских мероприятий.
Пространство создано так, что оно может трансформироваться под индивидуальные особенности каждое события, в зависимости от его масштаба и сложности. Снять помещение можно сроком от 2-х дней.

Башня Федерация» — флагманский проект ММДЦ «Москва-Сити», ставший современным символом
Москвы, и самый высокий жилой небоскреб Европы — 374 м. Башни соединены с ядром комплекса системой удобных крытых переходов, что обеспечивает большую плотность потока посетителей со всего делового квартала. «Башня Федерация» mixed-use комплекс, спроектированный по принципу вертикальной
улицы. Здесь можно найти все необходимое для жизни – рестораны, кафе, магазины, фитнес и бассейн, офисы. И, разумеется, роскошное жилье. Апартаменты в «Башне Федерация» расположены только на верхних этажах. Также каждый день бизнес центр столицы посещают 200 000 человек среди которых более 25 000 резидентов офисов, туристы, представители иностранных делегаций.

Оставить заявку
Max
 Москва, Россия
Смотреть 16 предложений в ЖК башня Федерация Москва Сити

Оставить заявку

Как к Вам обращаться? (необязательно)
Ваша электронная почта (необязательно)
Номер Вашего телефона (обязательно)
Ваше сообщение (необязательно)
Аналогичные предложения
ID 14684

Аренда помещения в «Башне Федерация»

Площадь: 564 м2

Этаж: -4 / 95

площадь
564 м2
этаж
-4 / 95

Жилой комплекс: башня Федерация Москва Сити

Район:

Выставочная, Деловой центр, Международная

Адрес: Москва, Россия

Аренда помещения на -4 этаже в «Башне Федерация» в ММДЦ «Москва Сити». Без ремонта, свободной планировки.

Цена по запросу

ID 14682

Представительские офисы класса А

Площадь: 1195 м2

Этаж: 35 / 95

площадь
1195 м2
этаж
35 / 95

Жилой комплекс: башня Федерация Москва Сити

Район:

Выставочная, Деловой центр, Международная

Адрес: Москва, Россия

F35– представительские офисы класса А для деловой элиты Москва-Сити. F35– привилегии класса А - Итальянский дизайн - Премиальные материалы отделки - Инженерные системы класса А - Отдельный...

Цена по запросу

ID 14906

Отличное предложение

Площадь: 430 м2

Этаж: 1 / 2

площадь
430 м2
этаж
1 / 2

Район:

Адрес: Москва, Россия

Вашему вниманию предлагается отдельно стоящее двухэтажное здание на ПЕРВОЙ линии Рублево-Успенского шоссе. Подходит под ресторан ( есть возможность кругового объезда для крупных сетевых общепитов), медицинский центр, а...

Цена по запросу

ID 14671

Помещение с панорамными окнами на первой линии с собственным входом

Площадь: 440 м2

Этаж: 2 / 6

площадь
440 м2
этаж
2 / 6

Район:

Пушкинская, Тверская

Адрес: Москва, Россия

Предлагается в аренду помещение в центре Москвы, на первой линии улицы с высоким пешеходным трафиком. Помещение имеет: - два уровня - панорамные окна - собственный вход (можно...

Цена по запросу

Возможна продажа Цена по запросу
ID 14313

Аренда помещения свободного назначения. ЦАО. м Краснопресненская

Площадь: 326 м2

Этаж: 1 / 8

площадь
326 м2
этаж
1 / 8

Район:

Краснопресненская

Адрес: Николаева

В аренду предлагается помещение свободного назначения, расположенное в ЦАО г. Москвы, в шаговой доступности от м. Краснопресненская Общая площадь: 326 кв.м: 1 -й этаж: 153.3 кв.м., высота...

Цена по запросу

Спецпредложение
ID 14284

Аренда представительского офиса в Хамовниках

Площадь: 1800 м2

Этаж: 1 / 6

площадь
1800 м2
этаж
1 / 6

Район:

Фрунзенская

Адрес: Москва, Россия

Двухуровневое помещение на Малой Пироговской в составе клубного дома "Barrin house". Выполнен дизайнерский ремонт, смешанная планировка, два отдельных входа с улицы, 20 м/м на подземном паркинге. Прекрасно...

Цена по запросу

+7 (495) 228-03-36
Продолжая работу с сайтом, вы подтверждаете свое согласие на обработку персональных данных и файлов cookie.