Предлагается в аренду готовый к эксплуатации особняк с парковкой во дворе.
Возможно использовать под банк.
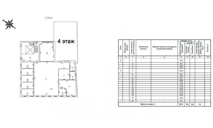
Площадь: 1707,9 кв.м. Количество этажей: 5, в том числе 1 подземный (подвал). Центральный вход с улицы Садовническая. Отдельный вход для персонала. Парковочные места во внутреннем дворе.
ТЕХНИЧЕСКИЕ ХАРАКТЕРИСТИКИ:
Теплоснабжение осуществляется по договору с МОЭК. Общая нагрузка вместе с субабонентами
(строение 4 и 6) составляет 0,082 Гкал/час. Водоснабжение и водоотведение осуществляется
по договору с Мосводоканал.
БЕЗОПАСНОСТЬ: охранная и тревожная сигнализация, автоматическая пожарная сигнализация,
охранное телевидение, система оповещения о пожаре, внутренний пожарный водопровод контроль и управление доступом.
КОНДИЦИОНИРОВАНИЕ: сплит система General Climate, сплит система DAIKIN, VRV система MDV, AIRSTAGE
