Аренда помещения свободного назначения на Пречистенке
ID: 11516

Аренда помещения свободного назначения на Пречистенке

Оставить заявку
Max

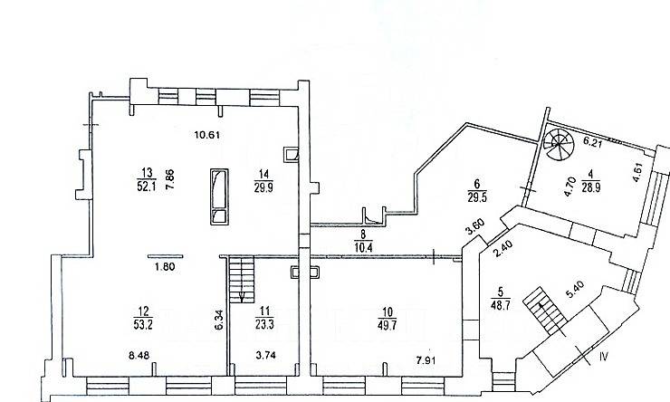
В престижном районе «Золотая Миля», предлагается в аренду помещение свободного назначения общей площадью 409,9 кв.м. Помещение занимает два уровня: первый этаж 325,7 кв.м и цокольный этаж с окнами 84,2 кв.м. Удобная транспортная доступность.
Высота потолков 3,85 м — первый этаж, цоколь — 2,5 м, электрическая мощность 45 кВт
Выполнен дизайнерский ремонт
Стоимость аренды: 1 300 000 руб/месяц + коммунальные платежи

Оставить заявку
Max
 Москва, Россия

Оставить заявку

Как к Вам обращаться? (необязательно)
Ваша электронная почта (необязательно)
Номер Вашего телефона (обязательно)
Ваше сообщение (необязательно)
Аналогичные предложения
ID 14578

Аренда двухуровнего офиса с террасой

Площадь: 205 м2

Этаж: 12 / 12

площадь
205 м2
этаж
12 / 12

Жилой комплекс: Баркли Парк (Barkli Park)

Район:

Достоевская, Цветной Бульвар

Адрес: Москва, Россия

Цена: 1 500 000 руб. Двухуровневый офис со вторым светом и террасой. Панорамное остекление, выход на огороженную эксплуатируемую кровлю. Barkli Park — уникальный дом premium класса в...

Цена по запросу

ID 14608

Аренда офиса на Мосфильмовской

Площадь: 540 м2

Этаж: 1 / 53

площадь
540 м2
этаж
1 / 53

Жилой комплекс: Дом на Мосфильмовской

Район:

Ломоносовская, Минская

Адрес: Мосфильмовская

Предлагаем в аренду офисное помещение общей площадью 540 кв.м, расположенное на первом этаже ЖК "Дом на Мосфильмовской". Помещение с отдельным входом, имеет смешанную планировку: 1 уровень: ресепшн,...

Цена по запросу

Эксклюзив
ID 11009

Аренда эксклюзивного офиса с видом на Кремль

Площадь: 612 м2

Этаж: 5 / 5

площадь
612 м2
этаж
5 / 5

Район:

Библиотека им.Ленина

Адрес: Москва, Россия

Аренда офиса в самом центре Москвы, с видом на Кремль, Храм Христа Спасителя и дом Пашкова. Общая площадь 612 кв. м, 5-й этаж бизнес-центра класса А+. Эксклюзивная...

Цена по запросу

ID 14258

Закрытое предложение! Роскошный представительский офис на Садовом кольце

Площадь: 470 м2

Этаж: 15 / 15

площадь
470 м2
этаж
15 / 15

Район:

Кропоткинская, Парк Культуры

Адрес: Москва, Россия

Аренда VIP этажа общей площадью 470 кв.м. Помещение готово к въезду, имеет качественную отделку и техническое оснащение, приточно-вытяжная система вентиляции, центральное кондиционирование, оптико-волоконная система, видеонаблюдение, противопожарные системы....

Цена по запросу

ID 10565

Аренда представительского офиса на Никольской

Площадь: 321 м2

Этаж: 4 / 7

площадь
321 м2
этаж
4 / 7

Район:

Площадь Революции

Адрес: Никольская

В Торгово-офисном комплексе класса "А+" предлагается в аренду помещение под офис общей площадью 321 кв.м. Удаленность от метро 2-3 мин. пешком. Подъездные пути: Новая площадь, Театральный проезд,...

Цена по запросу

ID 14423

Аренда офиса в БЦ класса «А» м. Маяковская

Площадь: 830 м2

Этаж: 8 / 16

площадь
830 м2
этаж
8 / 16

Район:

Маяковская

Адрес: Брестская 1-я

Бизнес-центр «Капитал Тауэр» (Capital Tower) располагается на 1-ой Брестской улице в Тверском районе Центрального округа Москвы. Деловой центр был построен в 2004 году и сразу же признан...

Цена по запросу

+7 (495) 228-03-36
Продолжая работу с сайтом, вы подтверждаете свое согласие на обработку персональных данных и файлов cookie.