Предлагается на продажу коммерческое помещение в Клубном Доме на Сретенке
ID: 14150

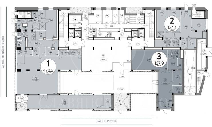
Предлагается на продажу коммерческое помещение в Клубном Доме на Сретенке

Оставить заявку
Max

Помещение свободного назначения. Общая площадь 157, 9 кв.м. Помещение №3
«Клубный дом на Срeтенке»
находится по адресу: Даев переулок дом19.
7мин. от метро «Сухаревская» пешком
•3 мин от метро на автомобиле
•3,6 км до Третьего транспортного кольца
•Авторский проект мастерской «ЦимайлоЛяшенко и партнеры»
•Электрическая мощность -200 Вт/кв. м

Оставить заявку
Max
 Даев пер., Москва, Россия

Оставить заявку

Как к Вам обращаться? (необязательно)
Ваша электронная почта (необязательно)
Номер Вашего телефона (обязательно)
Ваше сообщение (необязательно)
Аналогичные предложения
ID 11705

Особняк в Замоскворечье

Площадь: 928 м2

Этаж: 1 / 3

площадь
928 м2
этаж
1 / 3

Район:

Новокузнецкая

Адрес: Москва, Россия

Предлагается к продаже 3-этажный особняк (+мансарда), площадью 928,8 кв.м в ЦАО Москвы, в районе Замоскворечье. Электрическая мощность м50 кВт, центральное водоснабжение. Дом имеет охраняемую территорию. Высота потолков:...

Цена по запросу

ID 14531

Помещения свободного назначения в новом ЖК премиум — класса

Площадь: 53 м2

Этаж: 1 / 7

площадь
53 м2
этаж
1 / 7

Район:

Белорусская, Краснопресненская, Улица 1905 Года

Адрес: Тишинский Большой пер.

Новый Клубный дом Sinatra расположен в ЦАО в Тишинском переулке, в пешей доступности от станций метро 1905 года, Белорусская, Краснопресненская В основу концепции проекта легла исходная архитектура...

24 500 000 руб.

ID 14361

Продажа рынка в ЦАО. Цена снижена

Площадь: 3906 м2

Этаж: 1 / 3

площадь
3906 м2
этаж
1 / 3

Район:

Новокузнецкая

Адрес: Москва, Россия

Пятницкий торговый комплекс. Здание 2000 г. постройки, общая площадь 3906 кв. м. Земельный участок 1773 кв. м (пятно застройки) в аренде. Городская парковка по периметру здания. 3...

1 550 000 000 руб.

ID 13114

Продажа торгового помещения на Якиманке

Площадь: 969 м2

Этаж: 1 / 5

площадь
969 м2
этаж
1 / 5

Район:

Полянка

Адрес: Якиманка Большая

Продажа помещения под ресторан в новом клубном доме. В старинном районе Москвы предлагается двухуровневое помещение общей площадью 969,3 кв.м.: 1 этаж - 182,6 кв.м, цокольный этаж -...

767 000 000 руб.

ID 14125

Продажа коммерческого объекта на Пречистенской набережной

Площадь: 555 м2

Этажей: 3

площадь
555 м2
этаж
/ 3

Район:

Парк Культуры

Адрес: Пречистенская наб.

Продаётся помещение свободного назначения площадью 555 кв.м. Новый элитный дом расположен на Пречистенской набережной, в шаговой доступности от метро Парк культуры. Помещение имеет 3 уровня: 1 этаж...

Цена по запросу

ID 14575

Помещения свободного назначения в новом ЖК премиум — класса

Площадь: 421 м2

Этаж: 1 / 7

площадь
421 м2
этаж
1 / 7

Район:

Белорусская, Краснопресненская, Улица 1905 Года

Адрес: Москва, Россия

Новый Клубный дом Sinatra расположен в ЦАО в Тишинском переулке, в пешей доступности от станций метро 1905 года, Белорусская, Краснопресненская В основу концепции проекта легла исходная архитектура...

Цена по запросу

+7 (495) 228-03-36
Продолжая работу с сайтом, вы подтверждаете свое согласие на обработку персональных данных и файлов cookie.